プロロジスパーク東海1
| 物件番号 | 041006316 |
|---|---|
| 用途 | 貸し倉庫(倉庫・事務所) / 貸し倉庫 |
| 用途地域 | 準工業地域 |
| 所在地 | 愛知県東海市大田町東海太田川駅西土地区画整理事業地内 MAP |
| 交通 |
E87 知多半島道路 大府東海IC 5km 「太田川」駅 8分 |
| 竣工 | 2027年5月 |
| 構造 | 鉄骨造(S) |
| 規模 | 地上4階 |
| 延床面積 | 48397.62坪 / 159988.00m2 |
| 敷地面積 | 22023.78坪 / 72804.00m2 |
| 床荷重 | 倉庫区画 1.50t/㎡ |
| 床形式 | 高床式 |
| 床形式備考 | 高床式(1.0m) |
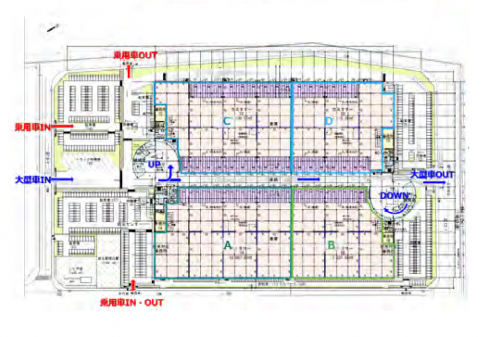
| 駐車場 | 平面駐車場 518台 |
| 倉庫備考 | ●「プロロジスパーク東海1」は、「プロロジスパーク東海2」とともに愛知県東海市において進められている「東海太田川駅西土地区画整理事業」区域内に開発予定の大型マルチテナント型物流施設(倉庫)です。 ●名鉄太田川駅から600m ●西知多産業道路「加家IC」より約1.8km |
| トラック待機場 | 有り |
- 大型物流倉庫
- 築10年以内
- ICから5km以内
- 非常用発電機
- 床荷重1.5t/㎡以上
- 大型車進入
- 高床
- トイレ
- バース
- ランプウェイ・スロープ
- 駐車場
貸倉庫物件・賃貸倉庫物件に関するご相談
経験豊富な全国のスタッフがお客様のご要望に合わせて、
幅広く物件探しをお手伝いします。
区画別募集情報
| 階 | 広さ | 用途 | 賃料合計 | 坪単価 | 敷金 / 保証金 | 礼金 | 入居時期 | ||
|---|---|---|---|---|---|---|---|---|---|
|
1階~4階1棟貸し |
42636.40坪 140943.14㎡ |
貸し倉庫(倉庫・事務所) | 相談 | @--- |
保証金 相談 |
相談 |
建築中 2027年6月 |
区画詳細 | |
|
1階 |
10681.10坪 35308.51㎡ |
貸し倉庫(倉庫・事務所) | 相談 | @--- |
保証金 相談 |
相談 |
建築中 2027年6月 |
区画詳細 | |
|
2階 |
10800.24坪 35702.34㎡ |
貸し倉庫(倉庫・事務所) | 相談 | @--- |
保証金 相談 |
相談 |
建築中 2027年6月 |
区画詳細 | |
|
3階 |
10800.24坪 35702.34㎡ |
貸し倉庫(倉庫・事務所) | 相談 | @--- |
保証金 相談 |
相談 |
建築中 2027年6月 |
区画詳細 | |
|
4階 |
10254.82坪 33899.35㎡ |
貸し倉庫(倉庫・事務所) | 相談 | @--- |
保証金 相談 |
相談 |
建築中 2027年6月 |
区画詳細 | |
|
1階 |
3108.02坪 10274.17㎡ |
貸し倉庫(倉庫・事務所) | 相談 | @--- |
保証金 相談 |
相談 |
建築中 2027年6月 |
区画詳細 | |
|
1階 |
2241.66坪 7410.25㎡ |
貸し倉庫(倉庫・事務所) | 相談 | @--- |
保証金 相談 |
相談 |
建築中 2027年6月 |
区画詳細 | |
|
1階 |
2975.58坪 9836.36㎡ |
貸し倉庫(倉庫・事務所) | 相談 | @--- |
保証金 相談 |
相談 |
建築中 2027年6月 |
区画詳細 | |
|
1階 |
2357.77坪 7794.07㎡ |
貸し倉庫(倉庫・事務所) | 相談 | @--- |
保証金 相談 |
相談 |
建築中 2027年6月 |
区画詳細 | |
|
詳しくはお問い合わせください |
800.00坪 2644.56㎡ |
貸し倉庫 | 相談 | @--- |
保証金 相談 |
相談 |
建築中 2027年6月 |
区画詳細 |
最近見た物件
貸倉庫物件・賃貸倉庫物件に関するご相談
経験豊富な全国のスタッフがお客様のご要望に合わせて、
幅広く物件探しをお手伝いします。