イマス堀溝倉庫 232.98坪
| フロアコード | L011019612-0001 |
|---|---|
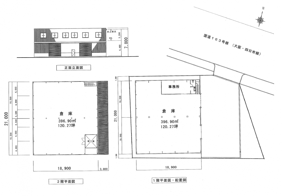
| 坪数 | 232.98坪 (770.20㎡) |
| 募集階 | 1階~2階1棟貸し |
| 賃料合計 | 1,150,000円 [税別] (@4,936) 【 税込 : 1,265,000円 】 |
| 保証金 | 9,200,000円 |
| 償却費 | 相談 |
| 礼金 | 2,530,000円 |
| 入居時期 | 空き予定 2026年9月 |
| 設備 | 電動シャッター,事務所付き |
| 区画備考 | ●電動シャッター:H約3.7mxW約3.8m |
倉庫詳細
| 物件名 | イマス堀溝倉庫 |
|---|---|
| 物件番号 | 011019612 |
| 用途 | 貸し倉庫(倉庫・事務所) |
| 用途地域 | 準住居地域 |
| 所在地 | 大阪府寝屋川市堀溝2-5-14 MAP |
| 交通 | 「萱島」駅 20分 |
| 竣工 | 1990年3月 |
| 構造 | 鉄骨造(S) |
| 規模 | 地上2階 |
| 延床面積 | 232.99坪 / 770.20m2 |
| 敷地面積 | 220.00坪 / 727.26m2 |
| 駐車場 | 駐車スペース |
| 倉庫備考 | ◆国道163号線(大阪・四日市線)に面する |
設備詳細
- 即入居可
- -
- 一棟貸し
- ●
- 大型物流倉庫
- -
- 築10年以内
- -
- ICから5km以内
- -
- 駅・バス停
5分以内 - -
- 制震・免震構造
- -
- 非常用発電機
- -
- 平屋建
- -
- 天井高5m以上
- -
- 床荷重
1.5t/㎡以上 - -
- 昇降機(EV)
- -
- 大型車進入
- ●
- 事務所
- ●
- 高床
- -
- 低床
- -
- 24h稼働可
- -
- クレーン
- -
- 変圧器・
キュービクル - -
- 空調
- -
- トイレ
- ●
- バース
- -
- ランプウェイ・
スロープ - -
- 駐車場
- ●
貸倉庫物件・賃貸倉庫物件に関するご相談
経験豊富な全国のスタッフがお客様のご要望に合わせて、
幅広く物件探しをお手伝いします。
区画別募集情報
| 階 | 広さ | 用途 | 賃料合計 | 坪単価 | 敷金 / 保証金 | 礼金 | 入居時期 |
|---|
現在他の空室はありません。
最近見た物件
貸倉庫物件・賃貸倉庫物件に関するご相談
経験豊富な全国のスタッフがお客様のご要望に合わせて、
幅広く物件探しをお手伝いします。