イマス仁和寺本町倉庫 469.16坪
| フロアコード | L010000205-0001 |
|---|---|
| 坪数 | 469.16坪 (1,550.93㎡) |
| 募集階 | 1階~4階1棟貸し |
| 賃料合計 | 1,200,111円 [税別] (@2,558) 【 税込 : 1,320,122.1円 】 |
| 敷金 | 960,000円 |
| 解約引 | 相談 |
| 礼金 | 2,640,000円 |
| 入居時期 | 即日 |
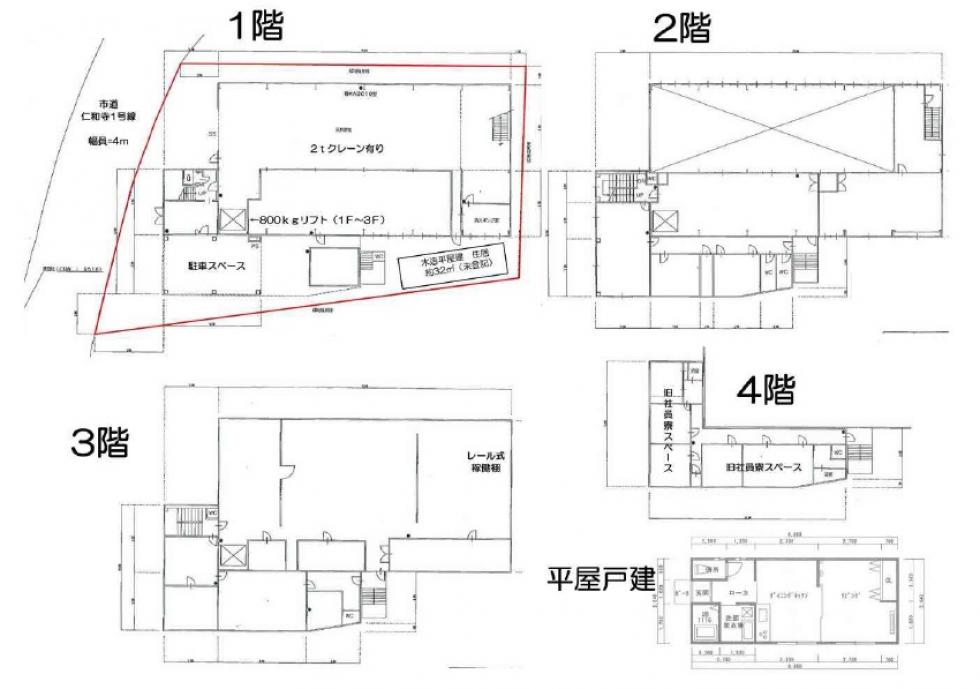
| 設備 | 電動シャッター,事務所付き, |
| 区画備考 | ●電動シャッター:W約3.5mxH約3.7m ●施設内設備はすべて残置物扱いになります |
倉庫詳細
| 物件名 | イマス仁和寺本町倉庫 |
|---|---|
| 物件番号 | 010000205 |
| 用途 | 貸し倉庫(倉庫・工場) |
| 用途地域 | 工業地域 |
| 所在地 | 大阪府寝屋川市仁和寺本町4-16-20 MAP |
| 交通 |
「寝屋川市」駅バス 11分 バス停「仁和寺バス停」徒歩7分 |
| 竣工 | 1985年4月 |
| 構造 | 鉄骨造(S) |
| 規模 | 地上4階 |
| 延床面積 | 469.15坪 / 1584.44m2 |
| 敷地面積 | 243.81坪 / 806.00m2 |
| 昇降機 | リフト:1基 |
| 駐車場 | 駐車スペース |
| 道路幅 | 4.00m |
| 道路状況備考 | 一方 西側市道:仁和寺1号線 |
設備詳細
- 即入居可
- ●
- 一棟貸し
- ●
- 大型物流倉庫
- -
- 築10年以内
- -
- ICから5km以内
- -
- 駅・バス停
5分以内 - -
- 制震・免震構造
- -
- 非常用発電機
- -
- 平屋建
- -
- 天井高5m以上
- -
- 床荷重
1.5t/㎡以上 - -
- 昇降機(EV)
- ●
- 大型車進入
- -
- 事務所
- ●
- 高床
- -
- 低床
- -
- 24h稼働可
- -
- クレーン
- ●
- 変圧器・
キュービクル - -
- 空調
- -
- トイレ
- ●
- バース
- -
- ランプウェイ・
スロープ - -
- 駐車場
- ●
貸倉庫物件・賃貸倉庫物件に関するご相談
経験豊富な全国のスタッフがお客様のご要望に合わせて、
幅広く物件探しをお手伝いします。
区画別募集情報
| 階 | 広さ | 用途 | 賃料合計 | 坪単価 | 敷金 / 保証金 | 礼金 | 入居時期 |
|---|
現在他の空室はありません。
最近見た物件
貸倉庫物件・賃貸倉庫物件に関するご相談
経験豊富な全国のスタッフがお客様のご要望に合わせて、
幅広く物件探しをお手伝いします。